Logo
Menu
PrinterFriendly
Druckoptimierte Version
Menue2

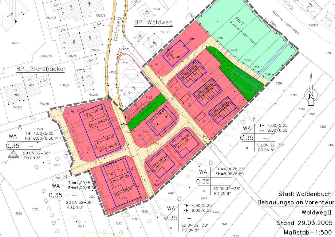
Städtebau, Bauleitplanung, Bebauungspläne


Unsere Leistungen für Kommunen, Projektentwickler, Bauträger:

  • Beratung des Projektträgers
  • Bestandsaufnahmen / Höhenaufnahme, Digitales Geländemodell
  • Ausarbeitung von Bebauungsvorschlägen, Städtebauliche Gestaltungsvorschläge
  • Bebauungsplan aufstellen, komplettes Rechtsverfahren
  • (in enger Zusammenarbeit mit der Kommune)

Ausgeführte Projekte

  • Wohnanlage Heimsheim, Lailberg
  • Wohnsiedlung Heimsheim, Blossenberg
  • Neuer Friedhof Weil im Schönbuch
  • Wohngebiet Weil im Schönbuch, Weil-Nord
  • Gewerbe – und Industriegebiet Altensteig
  • Sportstätten Heimsheim
  • Sportanlagen Weil im Schönbuch,
  • Wohngebiet Waldenbuch, Waldweg
  • Wohnanlage Ammerbuch,
  • Wohnanlagen Weil im Schönbuch, Troppel, Stäudach,
  • Sanierung Weil im Schönbuch Bismarckstr. / Hauptstraße
  • Seestraße,
  • Abrundungssatzung Weil im Schönbuch, Seegärten
  • Campingplatz …
Die ausführliche Projektliste finden Sie unter “Projektliste
Benutzername:
User-Login
Ihr E-Mail
*